無印良品が監修し、goodroomがリノベーションを手掛けました!
写真はイメージです。異なる場合は現況を優先します。
156
マンスリー
goodroom residence 保土ケ谷
神奈川県横浜市保土ケ谷区 岩井町283
横須賀線
保土ヶ谷駅
徒歩11分
京浜急行電鉄本線
井土ヶ谷駅
徒歩12分
根岸線
桜木町駅
バスで20分
聖隷横浜病院入口下車 徒歩5分住民票設置可即予約可能Wi-Figoodroom residenceランドリー(無料)施設内ショップコワーキングスペースサウナ
goodroomが作る"賃貸とホテルのいいとこどり"なレジデンスが横浜の隣駅に登場しました!
"無印良品監修"で、まるで無印の店舗に住んでいるかのような空間が魅力。
シンプルでおしゃれかつ機能的で、過ごしやすいお部屋です。
ラウンジや男女別のこだわりサウナも好きなだけご利用いただけます。
もっと身軽でもっと自由な暮らし、始めてみませんか?
●どんなエリア?
JR横須賀線と湘南新宿ラインが利用できる保土ケ谷駅。
横浜まで約3分、渋谷・品川・新宿・池袋など
主要駅まで1本30~40分でアクセスできる便利な路線です。
保土ケ谷は「谷」が付くだけあって坂の街。
道順の半分くらい急な坂道があります。
バスやシェアバイクを利用すれば楽ですよ。
また、徒歩5分のバス停からは黄金町駅まで
10分程度で行けるため、飲み屋街も近いですね◎
(▽goodspot|保土ケ谷編)
施設周辺のgoodなスポットをリスト化しています。
新しい発見があるかもしれません◎
https://maps.app.goo.gl/kfefT8Eb91k2GiE1A
●どんな施設?
goodroomがリノベーション・運営する「goodroom residence」。
第2弾として今回はなんと、”無印良品監修”で保土ケ谷に誕生!
また、こだわりのサウナも男女それぞれありますよ◎
住民票の設置も可能です!
goodroom residenceとは?
https://lp.livingpass.goodrooms.jp/goodroomresidence
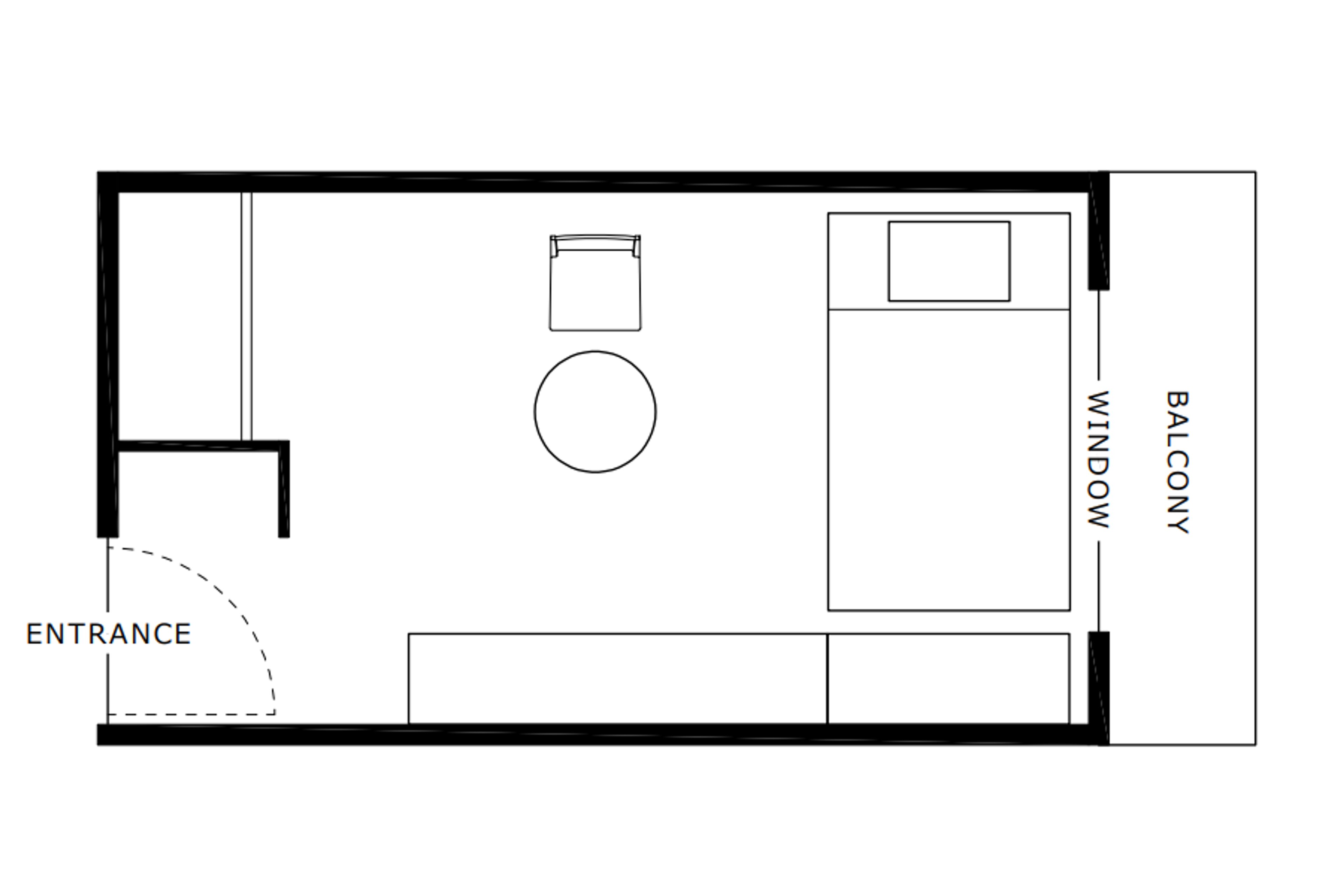
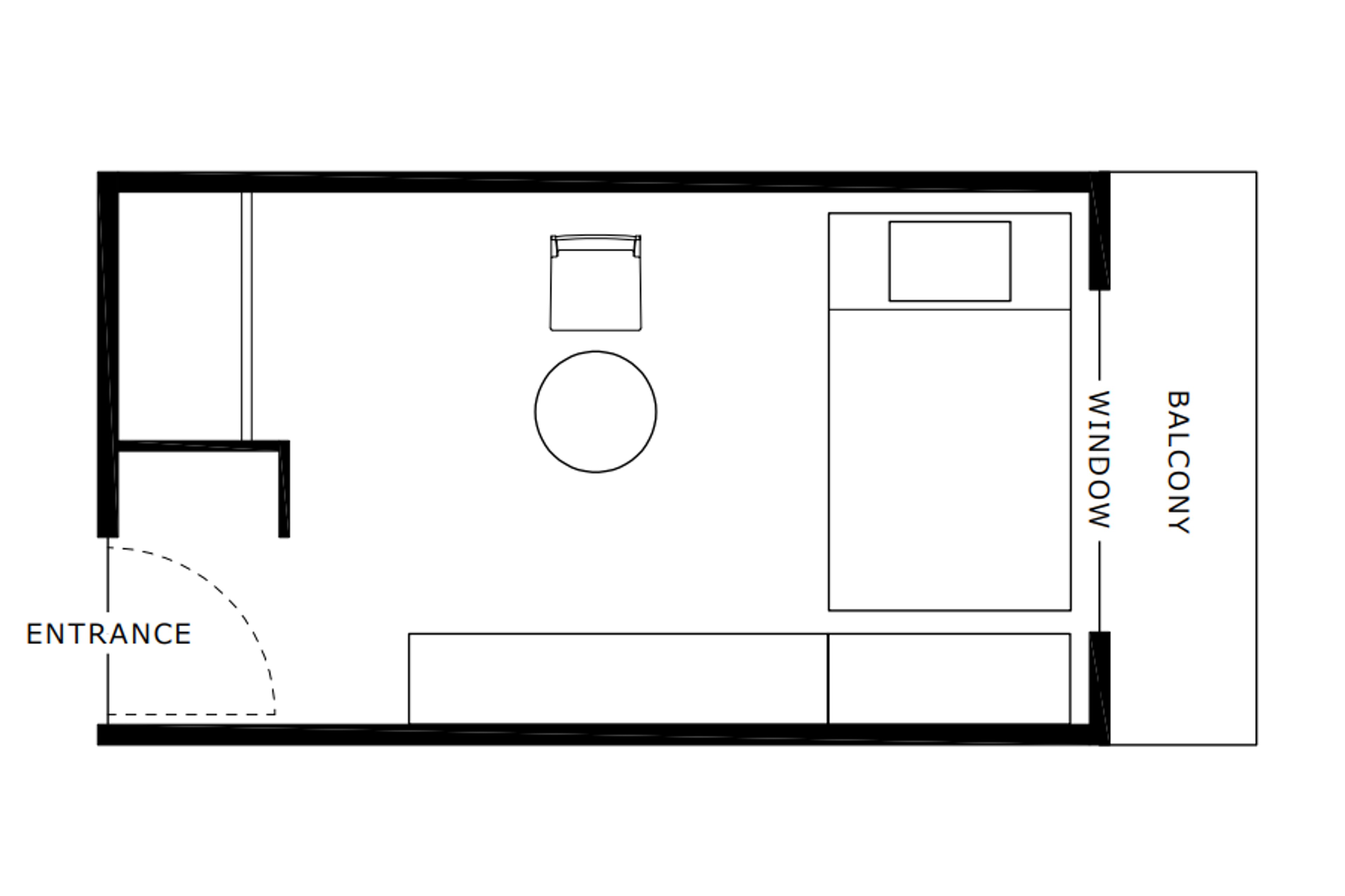
●どんなお部屋?
室内ももちろん、無印良品のアイテムを使用!
無駄がないプレーンな内装が特徴です。
ホテルにはない電子レンジや食器類、大きな収納を揃えました◎
お部屋タイプによりますが、
ホテルよりもゆとりのある空間となっています。
●気になるポイント
・道中、坂道があります。
→慣れるまで、キツいと感じるはず。
ただその分お値段はホテルよりもお得ですし、
ダイエットや健康促進になりそうです!
シェアサイクルやバスも利用できるので
アクセスマップ画像を参考にしてくださいね。
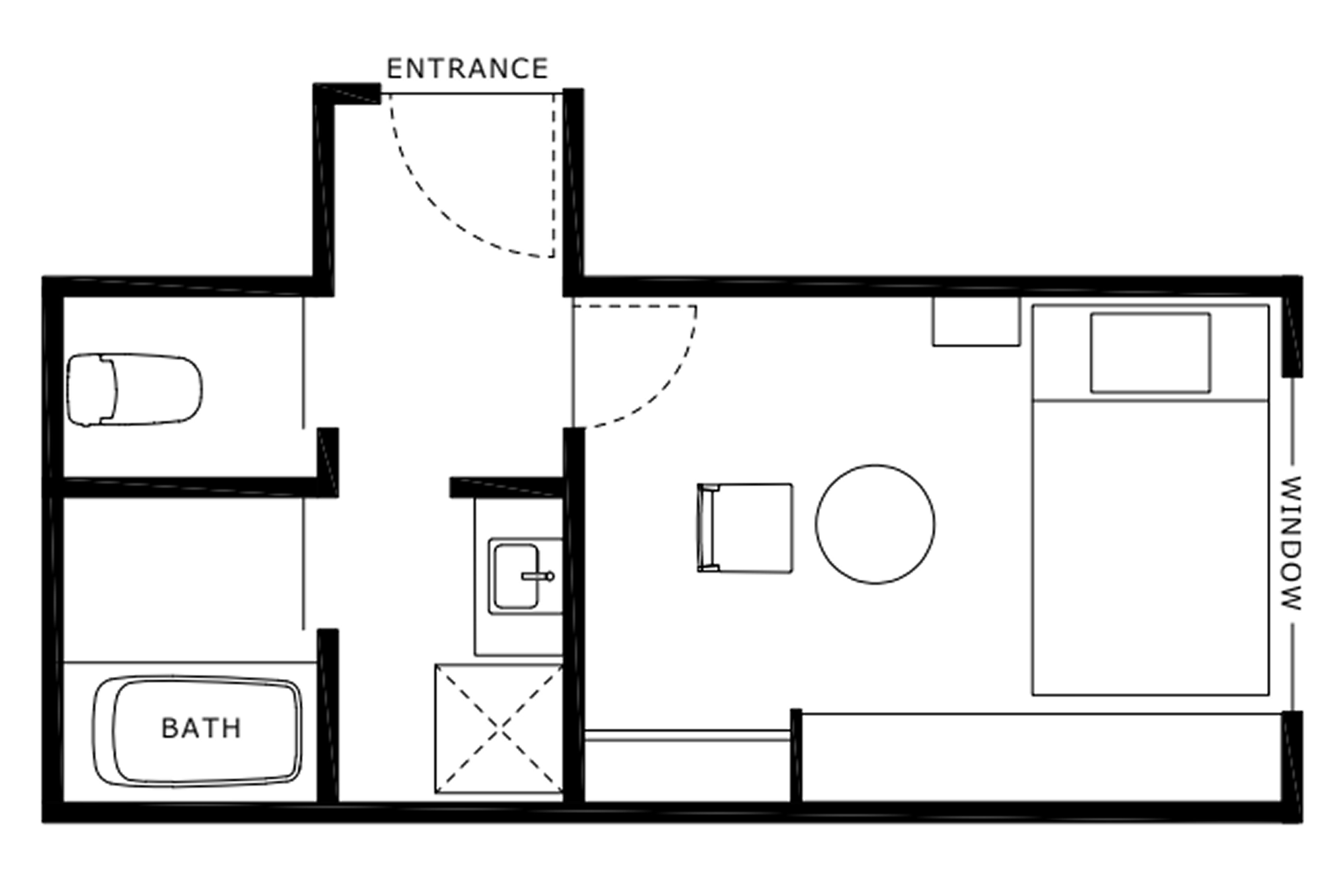
・部屋タイプにより、水回りは共有です。
※モデレート、スーペリアは水回りあり
※コンパクト洗面台付き、風呂トイレなし
→各階に男女それぞれ専用ののフルリノベーション済みの水回りを設けています。
・SRC造ですが音が伝わりやすい構造です。
壁やドアを通じて、生活音が響く場面があるかもしれません。
特に夜間など静かに過ごす配慮や工夫があるとより快適です。
・エレベーターがありません。
→階段で荷物を運べるキャリーカートを設置いたします。
・テレビのご用意がありません。
→必須の方は注意。オンデマンドをご利用くださいね。
●おすすめスポット
・「お弁当屋さん」という名前のお弁当屋さん(徒歩2分)
・美味しい定食屋さん「たかみね」(徒歩3分)
●さいごに
ホテルと賃貸のいいとこどり暮らし、ぜひ体験してみてください!
(yume)
"無印良品監修"で、まるで無印の店舗に住んでいるかのような空間が魅力。
シンプルでおしゃれかつ機能的で、過ごしやすいお部屋です。
ラウンジや男女別のこだわりサウナも好きなだけご利用いただけます。
もっと身軽でもっと自由な暮らし、始めてみませんか?
●どんなエリア?
JR横須賀線と湘南新宿ラインが利用できる保土ケ谷駅。
横浜まで約3分、渋谷・品川・新宿・池袋など
主要駅まで1本30~40分でアクセスできる便利な路線です。
保土ケ谷は「谷」が付くだけあって坂の街。
道順の半分くらい急な坂道があります。
バスやシェアバイクを利用すれば楽ですよ。
また、徒歩5分のバス停からは黄金町駅まで
10分程度で行けるため、飲み屋街も近いですね◎
(▽goodspot|保土ケ谷編)
施設周辺のgoodなスポットをリスト化しています。
新しい発見があるかもしれません◎
https://maps.app.goo.gl/kfefT8Eb91k2GiE1A
●どんな施設?
goodroomがリノベーション・運営する「goodroom residence」。
第2弾として今回はなんと、”無印良品監修”で保土ケ谷に誕生!
また、こだわりのサウナも男女それぞれありますよ◎
住民票の設置も可能です!
goodroom residenceとは?
https://lp.livingpass.goodrooms.jp/goodroomresidence
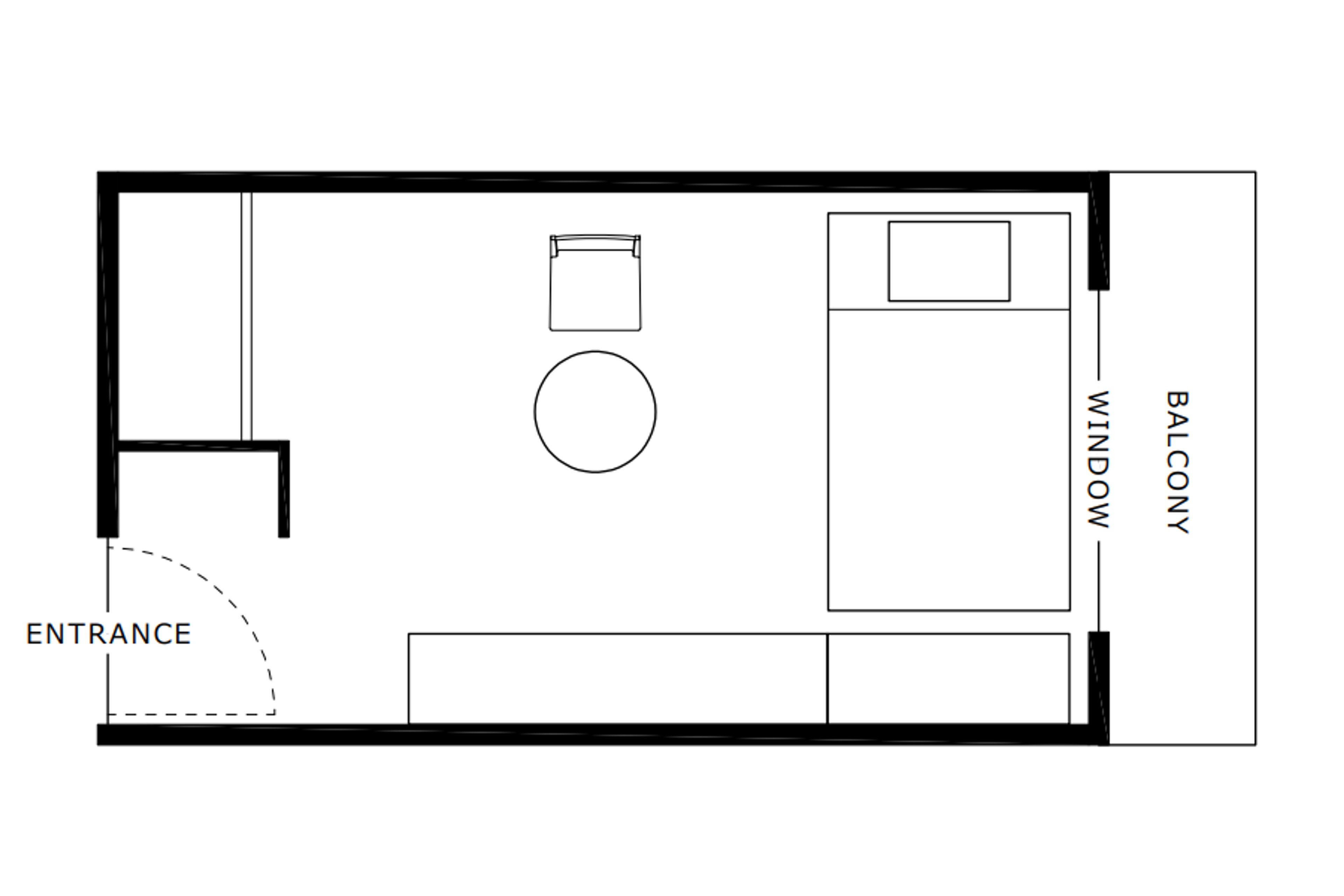
●どんなお部屋?
室内ももちろん、無印良品のアイテムを使用!
無駄がないプレーンな内装が特徴です。
ホテルにはない電子レンジや食器類、大きな収納を揃えました◎
お部屋タイプによりますが、
ホテルよりもゆとりのある空間となっています。
●気になるポイント
・道中、坂道があります。
→慣れるまで、キツいと感じるはず。
ただその分お値段はホテルよりもお得ですし、
ダイエットや健康促進になりそうです!
シェアサイクルやバスも利用できるので
アクセスマップ画像を参考にしてくださいね。
・部屋タイプにより、水回りは共有です。
※モデレート、スーペリアは水回りあり
※コンパクト洗面台付き、風呂トイレなし
→各階に男女それぞれ専用ののフルリノベーション済みの水回りを設けています。
・SRC造ですが音が伝わりやすい構造です。
壁やドアを通じて、生活音が響く場面があるかもしれません。
特に夜間など静かに過ごす配慮や工夫があるとより快適です。
・エレベーターがありません。
→階段で荷物を運べるキャリーカートを設置いたします。
・テレビのご用意がありません。
→必須の方は注意。オンデマンドをご利用くださいね。
●おすすめスポット
・「お弁当屋さん」という名前のお弁当屋さん(徒歩2分)
・美味しい定食屋さん「たかみね」(徒歩3分)
●さいごに
ホテルと賃貸のいいとこどり暮らし、ぜひ体験してみてください!
(yume)

2024.4.23
「ホテル暮らし」とどっちがいい?無印良品監修のライフスタイルレジデンス「goodroom residence 横浜保土ケ谷」の住み心地を、入居者目線でレビューします

2026.2.20
サウナ&無印良品監修のラウンジ完成!ライフスタイルレジデンス「goodroom residence 横浜保土ケ谷」に暮らしませんか

2026.2.20
goodroom と無印良品で、身軽な暮らしのためのお部屋をつくりました。「goodroom residence 横浜保土ケ谷」今夏オープン

2025.12.18
横浜の隣駅、なのにディープ。「渋イイ」が魅力の保土ケ谷駅

2020.3.18
心が迷子になるまえに 天王町
設備・サービス
Wi-Fi
コワーキングスペース
サウナ
施設内ショップ
共用部キッチン
電子レンジ
ランドリー(無料)
ランドリー(有料)
電子レンジ
すべて表示
部屋タイプ
120
360°写真
即予約
【5月最新価格!】ベーシック(禁煙)
マンスリープラン
1ヶ月〜¥150,000/月¥102,000/月
3ヶ月〜¥150,000/月¥96,000/月
6ヶ月〜¥150,000/月¥90,000/月
+管理費 ¥9,900/月
賃貸プラン
最安料金
+管理費・水光熱費 ¥22,200/月
キャンペーン実施中!
🎁24ヶ月賃貸プラン限定・5月中の入居開始で初回のお支払いから「家賃1ヶ月分」を割引!ギフトコード【free2605】を見積もり欄に入力!🎁(※対象:初めてサブスくらしをご利用の方・先着順)※規定数に達し次第予告なく終了する場合がございます。
詳細は「見積もり・申込み」からご確認ください!
120
360°写真
即予約
【戸数限定!コスパ重視の1年プラン】ベーシック(禁煙)
マンスリープラン
6ヶ月〜¥150,000/月¥84,600/月
+管理費 ¥9,900/月
キャンペーン実施中!
✨️戸数限定✨️
ご要望多数につき【1年プラン】を受付開始します!初期費用が抑えられて月々の家賃もリーズナブル。賃貸の2年縛りよりも柔軟な期間で、マンスリーよりコスパよく。364泊以上からご予約可能です。戸数限定のためお早めにお問合せくださいませ。
詳細は「見積もり・申込み」からご確認ください!
114
360°写真
即予約
【残りわずか!】モデレート(禁煙)
マンスリープラン
1ヶ月〜¥175,200/月¥123,000/月
3ヶ月〜¥175,200/月¥117,000/月
6ヶ月〜¥175,200/月¥108,000/月
+管理費 ¥9,900/月
賃貸プラン
最安料金
+管理費・水光熱費 ¥23,400/月
114
360°写真
即予約
【残りわずか!】コンパクト(禁煙)
マンスリープラン
1ヶ月〜¥109,800/月¥90,000/月
3ヶ月〜¥109,800/月¥84,000/月
6ヶ月〜¥109,800/月¥78,000/月
+管理費 ¥9,900/月
賃貸プラン
最安料金
+管理費・水光熱費 ¥21,600/月
114
360°写真
即予約
スーペリア(禁煙)
マンスリープラン
1ヶ月〜¥190,800/月¥135,000/月
3ヶ月〜¥190,800/月¥129,000/月
6ヶ月〜¥190,800/月¥123,000/月
+管理費 ¥9,900/月
アクセス
この施設を見たあなたへのおすすめ
この施設を含む暮らし方特集
4.98万〜サウナ&ラウンジ使い放題💡
家賃4.98万円〜、サウナもラウンジも無料で使える施設を集めました。
この価格帯で“ととのう時間”も“くつろぐ居場所”も手に入ります。
気に入ればそのまま住み続けて、気分を変えたくなったら別の街へ。
サウナとラウンジが日常にある暮らしを、身近に自由に楽しめます。
サブスくらしを始めてみたい方も、「まずはコスパ重視で試したい」という方も。
最初の一歩にちょうどいい、価格も体験も妥協しないラインナップです。
予算10万円の賢い選択💡
リーズナブルに暮らせる施設を集めました!
気に入ればリピート。気分を変えたいときは移動も出来るのがgoodroomサブスくらしの魅力です。サブスくらしを始めようか迷っている方、まずはこちらの施設で長期滞在を体験してみませんか?
【🎁最大2ヶ月分フリーレント】
新規の方限定丨先着順丨24ヶ月賃貸プランに適用丨家賃の1ヶ月分 or 2ヶ月分がフリーレント丨施設によって条件が異なります(※規定数に達し次第、予告なく終了・変更の可能性あり)
goodroom residence
goodroomがリノベーションを手掛ける、"ホテルと賃貸のいいとこどり"を目指した物件。
家具家電付き、住民票設置も可能です。
5月入居!まだ間に合う!
早めのお申し込みでも入居まで賃料発生なし!
家具家電付きだから引越しの手間を省いて新生活を始められます✨
空室残りわずかの施設も。早い者勝ちです...!
サウナ付きのおすすめホテル特集
現在幅広い層にブームとなっているサウナ。一日の終わりに毎日サウナに入って身体をととのえる。そんな贅沢な暮らし方がgoodroomサブスくらしならできちゃいます!今回はサウナ付きのおすすめのホテルをご紹介します。
すぐにご案内できる施設💨
お急ぎの方におすすめ💨すぐにご案内できる施設です!
家具・家電・アメニティ付きで身軽にすぐ新生活を始められますよ✨
15万円以内の人気施設
サイトで人気の高い、家賃月15万円以内の価格帯の施設をピックアップしました。
賃貸ではなかなか手が届かない立地や、特別感のある空間。毎日の気分を上げてくれる場所が見つかるはず。
