ついに関西にもgoodroom residenceが誕生しました!
写真はイメージです。異なる場合は現況を優先します。
138
マンスリー
goodroom residence 大阪豊中
大阪府豊中市 箕輪2−11−14
阪急電鉄宝塚線
蛍池駅
徒歩9分
大阪モノレール本線
大阪空港駅
徒歩15分
福知山線
伊丹駅
バスで19分
蛍ヶ池南町下車 徒歩5分中国池田ICから7分
🎁24ヶ月賃貸プラン5室限定・4月中の入居開始で初回のお支払いから「家賃1ヶ月分」を割引!ギフトコード【free2604】を見積もり欄に入力!🎁
住民票設置可goodroom residence
大阪梅田から直通15分、
伊丹空港(大阪国際空港)へは徒歩圏内と利便性◎
ほぼ全ての居室内に水回りとキッチンを完備していますよ!
●どんなエリア?
最寄りは阪急宝塚線の蛍池駅。
または、大阪モノレールの大阪空港駅。
いわゆる北摂と呼ばれる地域で
大阪の中でも落ち着いた住環境なので人気のエリアです。
大阪駅(梅田)へは15分ほどでいけますし、
名前の通り、大阪空港までもすぐ!
出張や研修期間など、ビジネス利用の方にも便利な立地ですよ。
蛍池駅直結の商業施設は書店やドラッグストアやスーパーが入ってて、
帰り道にお買い物がしやすいですよ。
ハンバーガー店や100円ショップもあったりと駅前のラインナップも豊富です。
大阪モノレールは空港だけでなく、
万博公園や大型ショッピングモールへ
遊びに行くことができるのもいいですね。
休日にショッピングも楽しめそうです!
▽goodspot|大阪豊中編
施設周辺のgoodなスポットをリスト化しています。
新しい発見があるかもしれません◎
https://maps.app.goo.gl/awAXXCPiAdwA6t2aA
●どんな施設?
goodroomがリノベーション・運営する”賃貸とホテルのいいとこどり”な
ライフスタイルレジデンスシリーズが、ついに大阪にも誕生しました!
施設の“顔”であるラウンジは、
goodroom residenceならではの癒されるデザイン。
温かみ、明るさ、開放感の三拍子が重なる空間となっています。
立地は、蛍池駅から徒歩で10分ほどのところ。
やや離れてはいますが、歩きでもそれほど疲れない距離感です。
なお施設の近くにはレンタサイクルサービスがありますよ。
また、敷地内に駐車場もございます!
※ご希望の場合は別途契約が必要です。
(▽goodroom residenceとは?)
設備と料金の面で、お得なポイントをご紹介!
https://lp.livingpass.goodrooms.jp/goodroomresidence
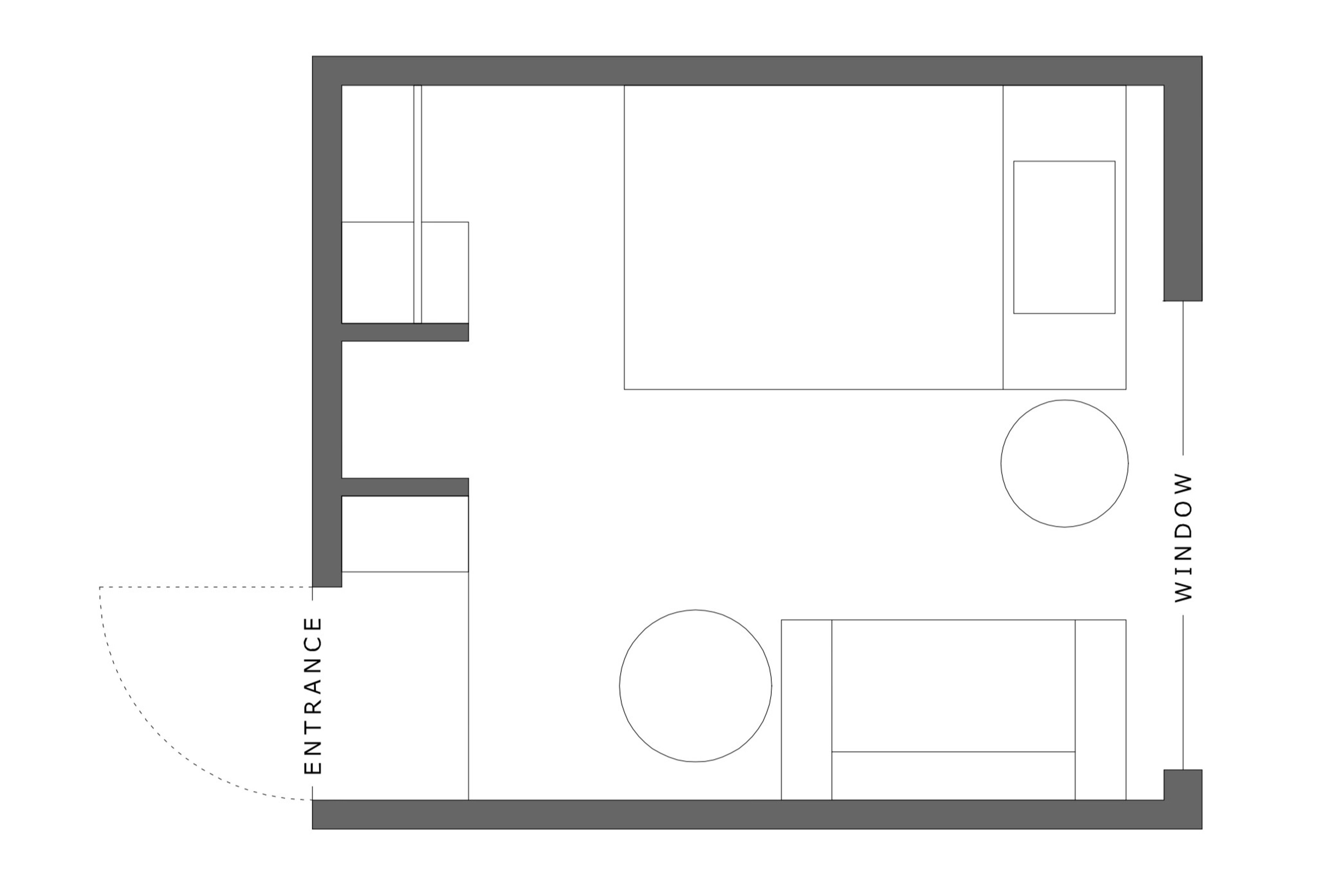
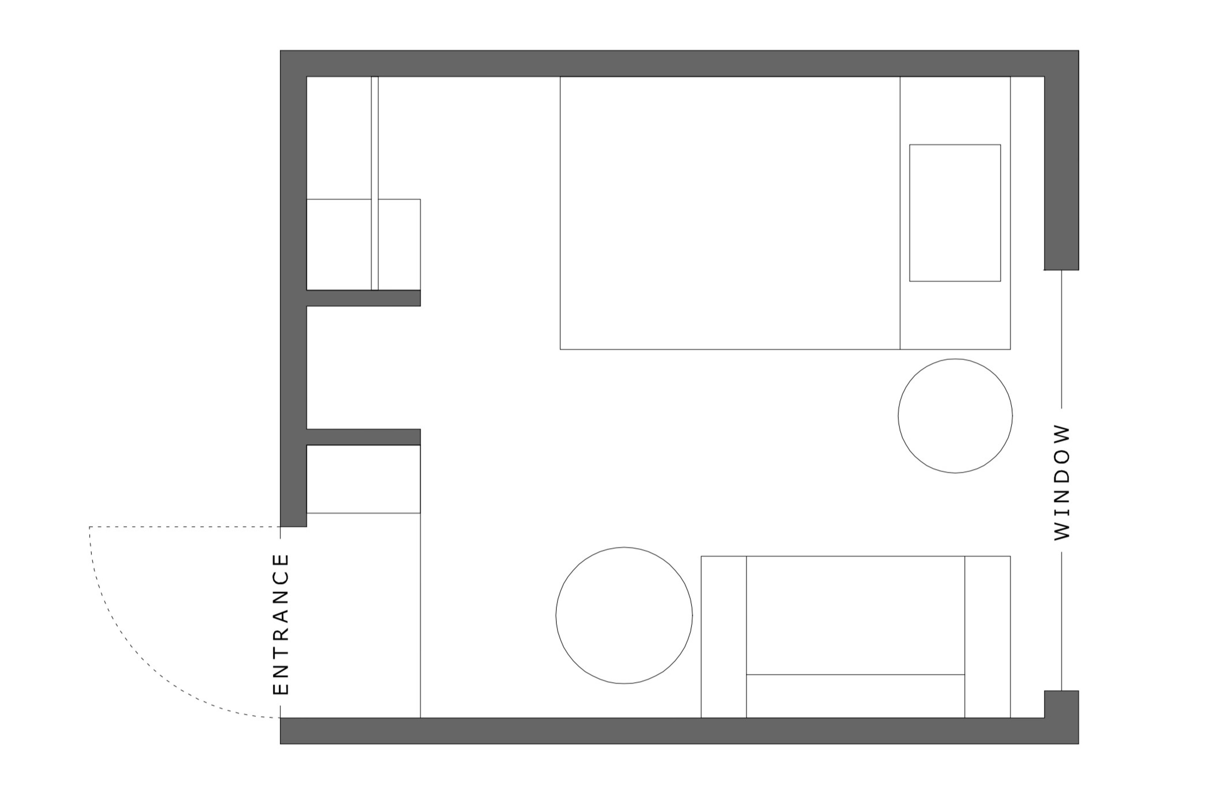
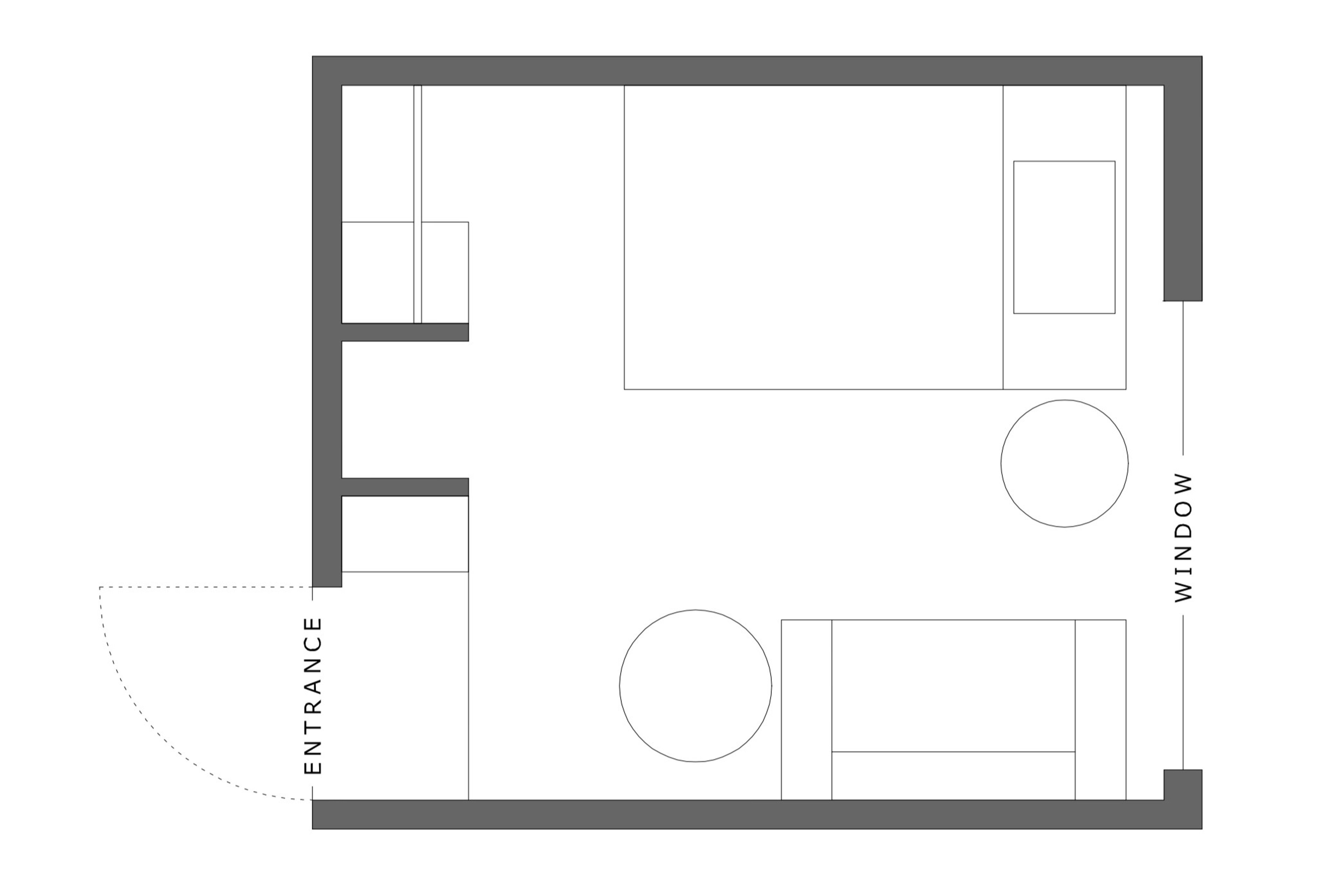
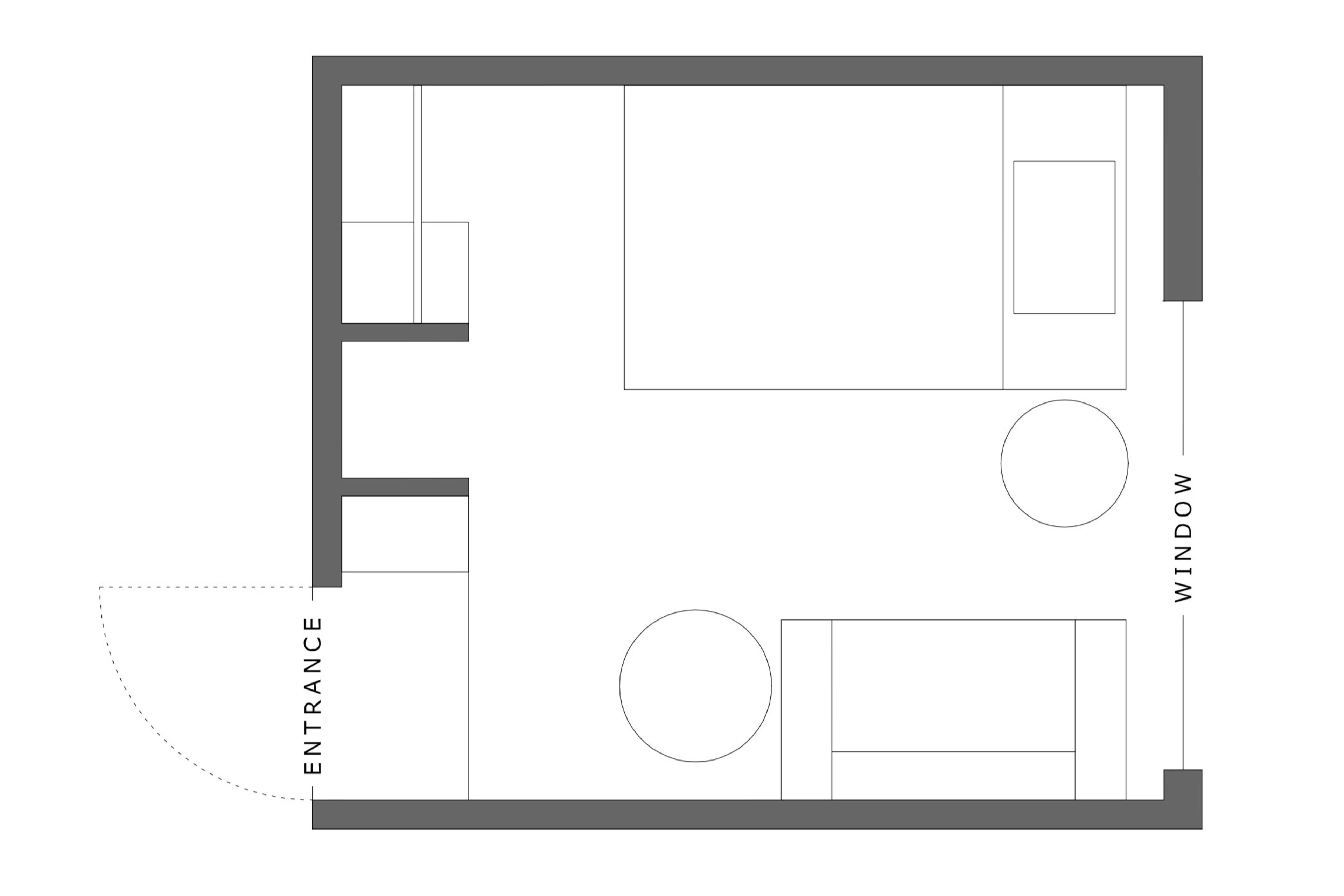
●どんなお部屋?
木の温もりや丸いカフェテーブル、
優しい色合いが合わさって、
シンプルながら居心地の良さを味わえます。
ベッドはセミダブルサイズを採用し、
ごろごろゆったりと眠れるように。
お仕事は、1人で集中したい時は室内のデスクで、
気分転換がてらにはラウンジを利用するというのも◎
整理整頓に欠かせないクローゼットも付いてます!
アメニティはスターターセットをご用意。
また、コンパクトを除くすべてのお部屋タイプには、専有部に水回りをご用意。
身軽な暮らしとプライベートな空間が両立できますよ。
一番の特徴は、お部屋の中にキッチンがあること!
コンロ、冷蔵庫、電子レンジ、そして食器も揃ってて
まるで我が家のように自炊を楽しめますよ◎
※コンパクト、ベーシックのお部屋タイプにはキッチンがありません。
●気になるポイント
・浴室は3点ユニットバスです。※モデレートのみ
→コンパクトな分お掃除は手軽に済ませられそうですね。
・エレベーターがありません。
→階段で荷物を運べるキャリーカートを設置いたします。
・テレビのご用意がありません。
→必須の方は注意。オンデマンドをご利用くださいね。
●さいごに
ホテルと賃貸のいいとこどりな暮らし、ぜひ体験してみてください!
伊丹空港(大阪国際空港)へは徒歩圏内と利便性◎
ほぼ全ての居室内に水回りとキッチンを完備していますよ!
●どんなエリア?
最寄りは阪急宝塚線の蛍池駅。
または、大阪モノレールの大阪空港駅。
いわゆる北摂と呼ばれる地域で
大阪の中でも落ち着いた住環境なので人気のエリアです。
大阪駅(梅田)へは15分ほどでいけますし、
名前の通り、大阪空港までもすぐ!
出張や研修期間など、ビジネス利用の方にも便利な立地ですよ。
蛍池駅直結の商業施設は書店やドラッグストアやスーパーが入ってて、
帰り道にお買い物がしやすいですよ。
ハンバーガー店や100円ショップもあったりと駅前のラインナップも豊富です。
大阪モノレールは空港だけでなく、
万博公園や大型ショッピングモールへ
遊びに行くことができるのもいいですね。
休日にショッピングも楽しめそうです!
▽goodspot|大阪豊中編
施設周辺のgoodなスポットをリスト化しています。
新しい発見があるかもしれません◎
https://maps.app.goo.gl/awAXXCPiAdwA6t2aA
●どんな施設?
goodroomがリノベーション・運営する”賃貸とホテルのいいとこどり”な
ライフスタイルレジデンスシリーズが、ついに大阪にも誕生しました!
施設の“顔”であるラウンジは、
goodroom residenceならではの癒されるデザイン。
温かみ、明るさ、開放感の三拍子が重なる空間となっています。
立地は、蛍池駅から徒歩で10分ほどのところ。
やや離れてはいますが、歩きでもそれほど疲れない距離感です。
なお施設の近くにはレンタサイクルサービスがありますよ。
また、敷地内に駐車場もございます!
※ご希望の場合は別途契約が必要です。
(▽goodroom residenceとは?)
設備と料金の面で、お得なポイントをご紹介!
https://lp.livingpass.goodrooms.jp/goodroomresidence
●どんなお部屋?
木の温もりや丸いカフェテーブル、
優しい色合いが合わさって、
シンプルながら居心地の良さを味わえます。
ベッドはセミダブルサイズを採用し、
ごろごろゆったりと眠れるように。
お仕事は、1人で集中したい時は室内のデスクで、
気分転換がてらにはラウンジを利用するというのも◎
整理整頓に欠かせないクローゼットも付いてます!
アメニティはスターターセットをご用意。
また、コンパクトを除くすべてのお部屋タイプには、専有部に水回りをご用意。
身軽な暮らしとプライベートな空間が両立できますよ。
一番の特徴は、お部屋の中にキッチンがあること!
コンロ、冷蔵庫、電子レンジ、そして食器も揃ってて
まるで我が家のように自炊を楽しめますよ◎
※コンパクト、ベーシックのお部屋タイプにはキッチンがありません。
●気になるポイント
・浴室は3点ユニットバスです。※モデレートのみ
→コンパクトな分お掃除は手軽に済ませられそうですね。
・エレベーターがありません。
→階段で荷物を運べるキャリーカートを設置いたします。
・テレビのご用意がありません。
→必須の方は注意。オンデマンドをご利用くださいね。
●さいごに
ホテルと賃貸のいいとこどりな暮らし、ぜひ体験してみてください!
設備・サービス
Wi-Fi
コワーキングスペース
共用部キッチン
電子レンジ
ランドリー(無料)
ランドリー(有料)
客室内キッチン
電子レンジ
すべて表示
部屋タイプ
132
360°写真
即予約
【先着5室限定!】モデレート(禁煙)
マンスリープラン
1ヶ月〜¥147,600/月¥112,800/月
3ヶ月〜¥147,600/月¥99,000/月
6ヶ月〜¥147,600/月¥93,000/月
+管理費 ¥9,900/月
賃貸プラン
ベストバリュー
+管理費・水光熱費 ¥22,200/月
キャンペーン実施中!
🎁24ヶ月賃貸プラン限定・4月中の入居開始で初回のお支払いから「家賃1ヶ月分」を割引!ギフトコード【free2604】を見積もり欄に入力!🎁
詳細は「見積もり・申込み」からご確認ください!
132
360°写真
即予約
【駐車場込み】モデレート(禁煙)
マンスリープラン
1ヶ月〜¥159,000/月¥124,200/月
3ヶ月〜¥159,000/月¥109,800/月
6ヶ月〜¥159,000/月¥103,200/月
+管理費 ¥9,900/月
賃貸プラン
ベストバリュー
+管理費・水光熱費 ¥22,200/月
キャンペーン実施中!
🎁24ヶ月賃貸プラン限定・4月中の入居開始で初回のお支払いから「家賃1ヶ月分」を割引!ギフトコード【free2604】を見積もり欄に入力!🎁
詳細は「見積もり・申込み」からご確認ください!
123
360°写真
即予約
【残りわずか!】コンパクト(禁煙)
マンスリープラン
1ヶ月〜¥119,400/月¥93,600/月
3ヶ月〜¥119,400/月¥81,000/月
6ヶ月〜¥119,400/月¥75,000/月
+管理費 ¥9,900/月
賃貸プラン
ベストバリュー
+管理費・水光熱費 ¥19,200/月
キャンペーン実施中!
🎁24ヶ月賃貸プラン限定・4月中の入居開始で初回のお支払いから「家賃1ヶ月分」を割引!ギフトコード【free2604】を見積もり欄に入力!🎁
詳細は「見積もり・申込み」からご確認ください!
123
360°写真
即予約
【駐車場込み】コンパクト(禁煙)
マンスリープラン
1ヶ月〜¥130,800/月¥105,000/月
3ヶ月〜¥130,800/月¥91,800/月
6ヶ月〜¥130,800/月¥85,200/月
+管理費 ¥9,900/月
賃貸プラン
ベストバリュー
+管理費・水光熱費 ¥19,200/月
キャンペーン実施中!
🎁24ヶ月賃貸プラン限定・4月中の入居開始で初回のお支払いから「家賃1ヶ月分」を割引!ギフトコード【free2604】を見積もり欄に入力!🎁
詳細は「見積もり・申込み」からご確認ください!
125
360°写真
即予約
【日程ご相談】ベーシック(禁煙)
マンスリープラン
1ヶ月〜¥145,200/月¥99,600/月
3ヶ月〜¥145,200/月¥87,000/月
6ヶ月〜¥145,200/月¥81,000/月
+管理費 ¥9,900/月
賃貸プラン
ベストバリュー
+管理費・水光熱費 ¥21,600/月
キャンペーン実施中!
🎁24ヶ月賃貸プラン限定・4月中の入居開始で初回のお支払いから「家賃1ヶ月分」を割引!ギフトコード【free2604】を見積もり欄に入力!🎁
詳細は「見積もり・申込み」からご確認ください!
119
360°写真
即予約
【日程ご相談】スーペリア(禁煙)
マンスリープラン
1ヶ月〜¥211,200/月¥122,400/月
3ヶ月〜¥211,200/月¥115,800/月
6ヶ月〜¥211,200/月¥99,000/月
+管理費 ¥9,900/月
賃貸プラン
ベストバリュー
+管理費・水光熱費 ¥21,600/月
キャンペーン実施中!
🎁24ヶ月賃貸プラン限定・4月中の入居開始で初回のお支払いから「家賃1ヶ月分」を割引!ギフトコード【free2604】を見積もり欄に入力!🎁
詳細は「見積もり・申込み」からご確認ください!
125
360°写真
即予約
【駐車場込み】ベーシック(禁煙)
満室
マンスリープラン
1ヶ月〜¥156,600/月¥111,000/月
3ヶ月〜¥156,600/月¥97,800/月
6ヶ月〜¥156,600/月¥91,200/月
+管理費 ¥9,900/月
賃貸プラン
ベストバリュー
+管理費・水光熱費 ¥21,600/月
キャンペーン実施中!
🎁24ヶ月賃貸プラン限定・4月中の入居開始で初回のお支払いから「家賃1ヶ月分」を割引!ギフトコード【free2604】を見積もり欄に入力!🎁
詳細は「見積もり・申込み」からご確認ください!
119
360°写真
即予約
【駐車場込み】スーペリア(禁煙)
満室
マンスリープラン
1ヶ月〜¥222,600/月¥133,800/月
3ヶ月〜¥222,600/月¥126,600/月
6ヶ月〜¥222,600/月¥109,200/月
+管理費 ¥9,900/月
賃貸プラン
ベストバリュー
+管理費・水光熱費 ¥21,600/月
キャンペーン実施中!
🎁24ヶ月賃貸プラン限定・4月中の入居開始で初回のお支払いから「家賃1ヶ月分」を割引!ギフトコード【free2604】を見積もり欄に入力!🎁
詳細は「見積もり・申込み」からご確認ください!
アクセス
この施設を見たあなたへのおすすめ
この施設を含む暮らし方特集
予算10万円の賢い選択💡
リーズナブルに暮らせる施設を集めました!
気に入ればリピート。気分を変えたいときは移動も出来るのがgoodroomサブスくらしの魅力です。サブスくらしを始めようか迷っている方、まずはこちらの施設で長期滞在を体験してみませんか?
【新規の方限定丨先着順】24ヶ月賃貸プランで家賃1ヶ月分無料!(※26年4月中までの入居限定)
goodroom residence
goodroomがリノベーションを手掛ける、"ホテルと賃貸のいいとこどり"を目指した物件。
家具家電付き、住民票設置も可能です。
1年以内にオープンした施設
過去1年以内にオープン!リノベーションしたばかりの新規レジデンスです🆕✨
サウナ・ラウンジ無料✨
月額8万円台~のマンスリー
おしゃれな家具家電付き・住民票設置可・サウナ/ワークラウンジを併設・無印良品提携
goodroomがつくったレジデンスです!
すぐにご案内できる施設💨
お急ぎの方におすすめ💨すぐにご案内できる施設です!
家具・家電・アメニティ付きで身軽にすぐ新生活を始められますよ✨
2026年春入学のあなたへ!賃料1か月目無料キャンペーン💁♂️
🎁ギフトコード【free2604】🎁
新大学生のあなたに!24ヶ月賃貸プランで賃料1か月目無料CP実施中!(※予告無く終了・変更の可能性あり)
■キャンペーン利用方法
申し込みフォームで24ヶ月プランを選択し、ギフトコード【free2604】をギフトコード入力欄にご記入ください。
■対象期間
・お申込み期限:2026年4月15日(水)まで
・ご入居開始日:2026年4月30日(木)までのご入居
■ご利用対象
・サブスくらしのご利用が初めての方
・ご入居時点で満18歳以上の方
15万円以内の人気施設
サイトで人気の高い、家賃月15万円以内の価格帯の施設をピックアップしました。
賃貸ではなかなか手が届かない立地や、特別感のある空間。毎日の気分を上げてくれる場所が見つかるはず。
20万円以内の人気施設
上質な暮らし体験を得られる、家賃月20万円以内のおすすめ施設を選びました!
日常使いも良し、1か月だけ贅沢してみるも良し。サブスくらしするなら1度は滞在してみたい人気の施設です。



